EN VENTA PH DE 4 AMBIENTES EN MONSERRAT - A METROS DE AV. 25 DE MAYO - ZONA CENTRICA!

direccion Piedras Al 100, Monserrat

volver Volver al listado
left
right
left
right

Venta

USD 195.000

  • Oportunidad
Codigo Código de propiedad: C-475
  • Tipo de propiedad Departamentos
  • toilet 1 baño
  • cama 3 Dormitorios
  • cama 1 Dormitorio en suite
  • Superficie cubierta Sup. cubierta 131m2
  • Estado Estado Reciclado

Acerca de la propiedad

C/475
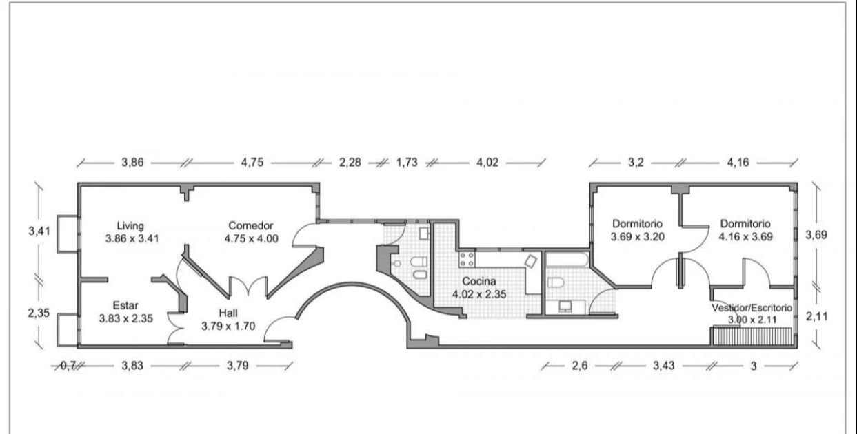
AMPLIO DEPARTAMENTO EN VENTA
CALLE PIEDRAS AL 100 – MONSERRAT
A METROS DE AV. 25 DE MAYO Y AV. 9 DE JULIO – CENTRICO!

POSEE:
LIVING
COMEDOR
DOS DORMITORIOS
ESCRITORIO/ VESTIDOR O TERCER DORMITORIO
BAÑO COMPLETO
PLAYROOM O SALA DE ESTAR
AMPLIOS BALCONES

RECICLADO A NUEVO – AL FRENTE – PISOS DE MADERA EN EXCELENTE ESTADO
--TODOS LOS AMBIENTES SON GRANDES Y LUMINOSOS--

SUP. CUBIERTA 131MTS2

ABONA EXPENSAS!
EDIFICIO DE 6 PISOS CON ASCENSOR
 
VALOR U$s195.000.-
 
 

Comodidades

  • Patio Sin patio
  • Jardin Sin jardin
Ver más

Ubicación

Servicio brindado por

buscadorprop

Todos los derechos registrados:

grupotodo
whatsapp Whatsapp email Contactar telefono Llamar
Chatea con nosotros whatsapp