IMPORTANTE LOCAL EN ESQUINA EN VENTA - AV. ESPORA Y ARAUJO - BURZACO

direccion Av. Espora Esquina Araujo, Burzaco

volver Volver al listado
left
right
left
right

Venta

USD 240.000

  • Oportunidad
Codigo Código de propiedad: C-448
  • Tipo de propiedad Locales
  • toilet 4 baños
  • Superficie cubierta Sup. cubierta 270m2
  • Superficie total Sup. total 327m2
  • Pisos 2 pisos
  • Estado Estado Muy bueno

Acerca de la propiedad

C/448
AMPLIO LOCAL EN VENTA
AV. ESPORA AL 4600 ESQUINA ARAUJO – BURZACO
SE VENDE LOCAL EN IMPORTANTE ESQUINA
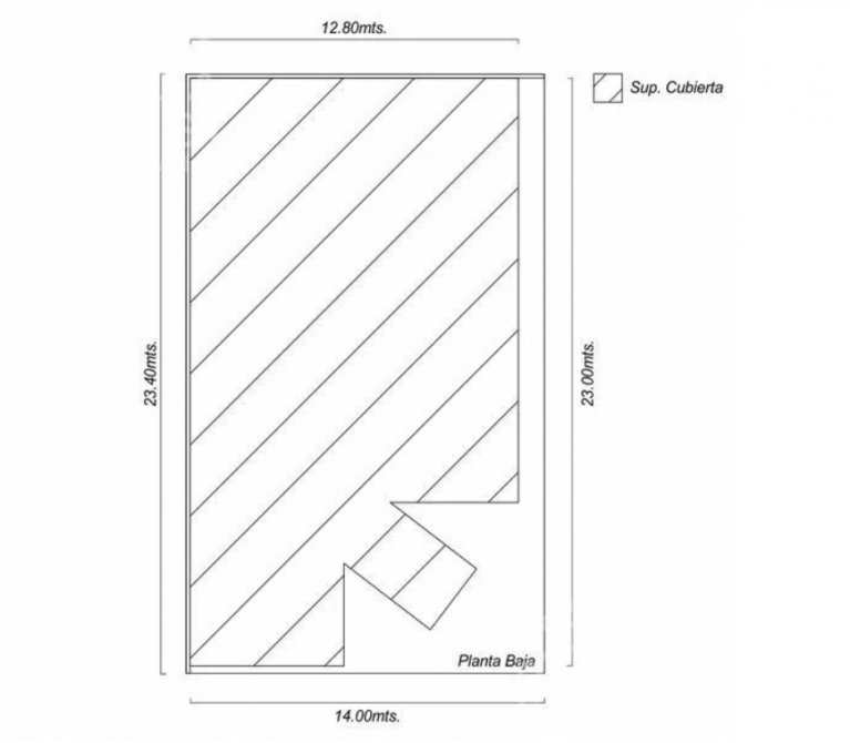
SOBRE LOTE DE 327MTS2
SUP. CUBIERTA TOTAL 540MTS2 DISTRIBUIDOS EN PLANTA BAJA (270MTS2), 1º PISO (150MTS2) Y 2º PISO (120MTS2)
POSEE 4 BAÑOS
INMUEBLE APTO: GIMNASIO – AGENCIA DE AUTOS – EMPRESAS VARIAS – INSTITUCIONES MEDICAS – SUPERMERCADO – LABORATORIOS – OBRAS SOCIALES
 
VALOR DE VENTA U$s240.000.-
 
CONSULTAR POR VENTA DEL FONDO DE COMERCIO RUBRO GIMNASIO
ACTUALMENTE 300 SOCIOS – TOTALMENTE EQUIPADO CON MAQUINAS VARIAS

*LAS MEDIDAS SON APROXIMADAS. LAS ORIGINALES SURGIRAN DEL ESTADO PARCELARIO*
 
 
 

Comodidades

Ver más

Ubicación

Servicio brindado por

buscadorprop

Todos los derechos registrados:

grupotodo
whatsapp Whatsapp email Contactar telefono Llamar
Chatea con nosotros whatsapp